
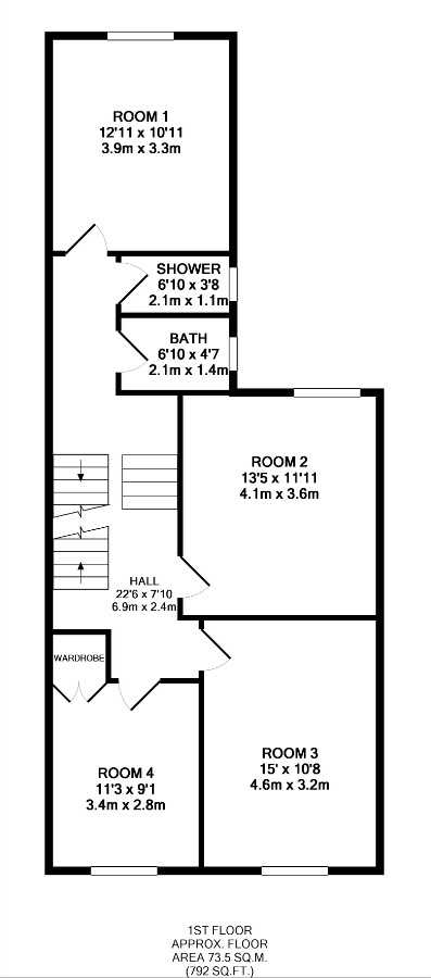
7 Bedrooms
3 Bathrooms
1 Reception
Available 1 Sept
13 photos
Room PricesAVAILABLE FROM SEPT 2026
Perfectly Placed 7-Bed Student Home!
Looking for the ideal balance between study and social life? This spacious 7-bedroom student house in the heart of North Hill is perfectly positioned for both! Just 4 minutes down the hill takes you straight to campus, while 4 minutes up the hill brings you to all your favourite bars, cafés, and shops around Mutley Plain. You really couldn’t ask for a better spot. Inside, you’ll find a large modern kitchen with an open-plan lounge, complete with a wall-mounted TV - perfect for house dinners or movie nights. The property also includes 7 double bedrooms and 3 bathrooms, giving everyone plenty of space and comfort.
Even better, all bills are included in your rent — that’s gas, electric, water, broadband, and TV licence, plus a monthly communal cleaning service to keep things fresh and easy.
This one always gets snapped up quickly — don’t miss out!
Deposit: £300pp
Additional rent & deposit required for dual occupancy (where permitted) - please call for details
*Subject to fair usage policy
Interested? Book a viewing!
Tel: 01752 600014
Email: office@purpleletting.com
Reference: SPLY100055
Disclaimer
These particulars are intended to give a fair description of the property but their accuracy cannot be guaranteed, and they do not constitute an offer of contract. Applicants must rely on their own inspection of the property. None of the above appliances/services have been tested by ourselves. We recommend purchasers arrange for a qualified person to check all appliances/services before legal commitment.
*When specified "All Bills Inclusive" this is subject to a utility usage policy for Gas, Electric and Water
Relevant letting fees and tenant protection information
As well as paying the rent, you may also be required to make the following permitted payments.
Permitted payments
Holding Deposit - Equal to ONE Weeks Rent
Tenancy Deposit - Equal to ONE Months Rent
Key Replacement - from £18
Early Termination when Requested by the tenant - A charge not exceeding the financial loss experienced by the landlord
Call Out Charges - During Office Hours £60 - Out of Office Hours £60 - Unsocial Hours between 10pm-7am £100
Tenancy Agreement Amendments - £48
Default Charge for Late Payment of Rent - Interest at 3% above Bank of England Base Rate
Purple Letting is a member of the UK Association of Letting Agents (UKALA) and subscribe to their client money protection scheme, Purple Letting are also a member of The Ombudsman Services, which is a redress scheme. You can find out more details on the agents website or by contacting the agent directly.